Präzise Konstruktionspläne aus Tirol

Detaillierte Konstruktionspläne sind ein wesentlicher Bestandteil jeder erfolgreichen Bauplanung. Sie bilden die Grundlage für eine reibungslose Umsetzung auf der Baustelle und gewährleisten, dass sämtliche Anforderungen präzise umgesetzt werden. Durch eine sorgfältige Ausarbeitung schaffen wir Transparenz und Sicherheit in jeder Phase Ihres Bauprojekts.

Kontaktieren Sie uns

Klare Planung für eine exakte Umsetzung

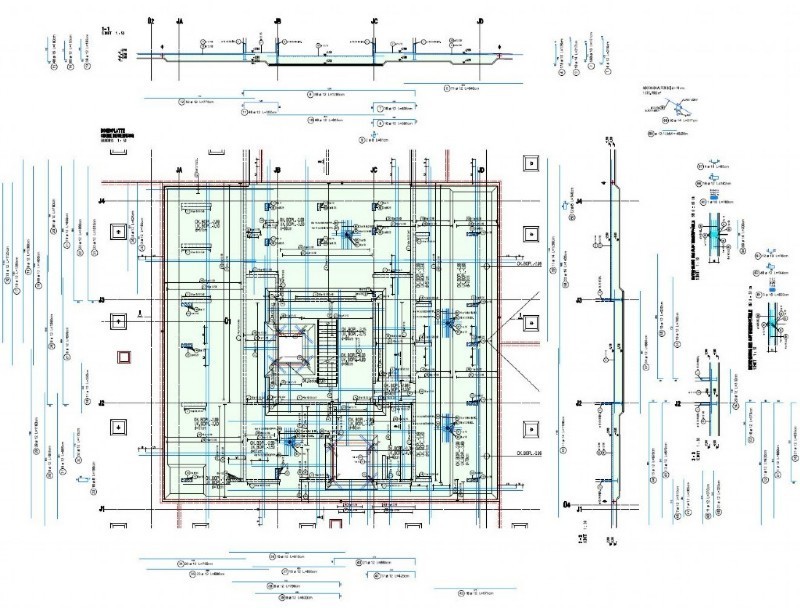
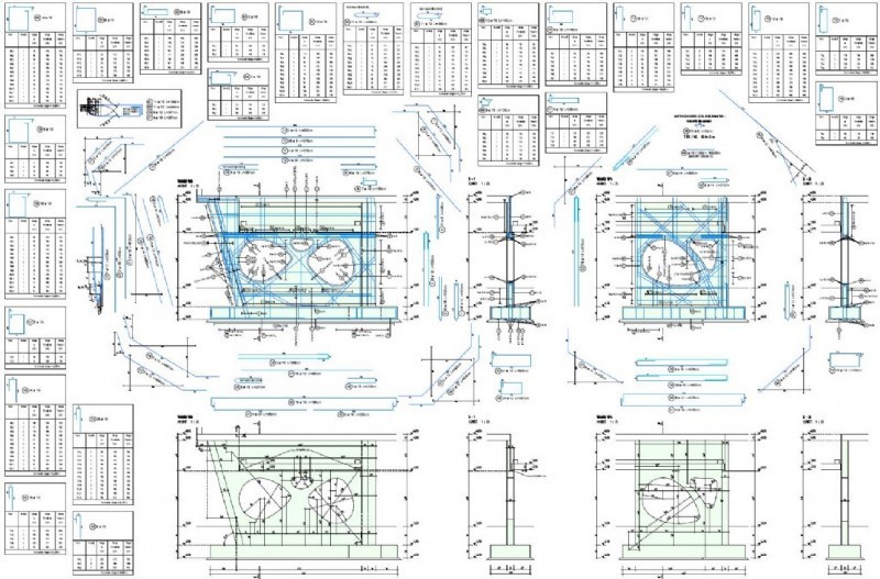
Konstruktionspläne dienen als verbindliche Grundlage für alle Beteiligten am Bauprojekt. Sie enthalten sämtliche relevanten Details und ermöglichen eine klare Kommunikation zwischen Planung und Ausführung. In Tirol erstellen wir präzise Unterlagen, die alle baulichen Anforderungen berücksichtigen und eine fehlerfreie Umsetzung unterstützen. So werden Missverständnisse vermieden und Abläufe effizient gestaltet.

Detailgenauigkeit für höchste Qualität

Je genauer die Planung, desto besser das Ergebnis. Unsere Konstruktionspläne zeichnen sich durch hohe Detailtiefe und technische Genauigkeit aus. Dadurch stellen wir sicher, dass jedes Element optimal umgesetzt wird und die Qualität des Bauwerks langfristig gesichert ist. Mit unserer Erfahrung in Tirol begleiten wir Sie zuverlässig und sorgen dafür, dass Ihr Bauprojekt auf einer soliden und klar strukturierten Planungsbasis entsteht.